微信掃碼
不僅是專業的導購
還是聊車的好伙伴
微信掃碼
不僅是專業的導購
還是聊車的好伙伴
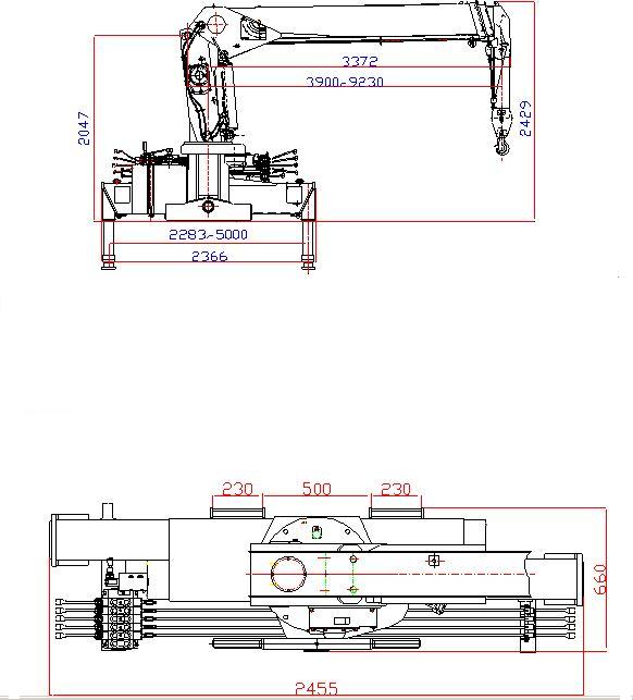
6.3噸隨車吊三節直臂程力威牌隨車起重機參數--SQ6.3SA2

東風6.3噸隨車吊三節直臂

|
6.3噸隨車吊三節直臂起重機型號 |
SQ6.3SA2 (6.3噸三節直臂) | |||||||||||
|
最 大 起 重 質 量kg |
6300 | |||||||||||
|
最 大 起 重 力 矩n.m |
151200 | |||||||||||
|
截 面 形 式 |
五邊形 |
回 轉 機 構 |
回轉速度r/min |
2 | ||||||||
|
節 數 |
3 (伸二節) |
回轉范圍° |
360(任意) | |||||||||
|
長 度m |
4-9.23 |
支 腿 |
型 式 |
直立撐腿 | ||||||||
|
最大作業半徑m |
9.0 |
跨 距m |
2.28-5.0 | |||||||||
|
伸出速度m/s |
5.33/17 |
液 壓 系 統 |
系統壓力mpa |
20 | ||||||||
|
變 幅 范 圍 |
1-76 |
油箱容積L |
76 | |||||||||
|
起臂速度°/s |
76/13 |
安全裝置 |
過 轉 報 警 | |||||||||
|
最大起升高度m |
10.9 |
自 重kg |
1900 | |||||||||
|
單繩允許拉力N |
13250 |
匹配卡車 |
裝載質量5噸以上的卡車 | |||||||||
|
最大單繩速度m/min |
28 |
安裝空間 |
| |||||||||
|
鋼絲繩直徑mm |
9.3 |
說明:上表參數是發動機轉速為1500r/min情況時的額定參數。 | ||||||||||
|
鋼絲繩長度m |
60 | |||||||||||
|
起重能力對照表 | ||||||||||||
|
工作半徑m |
2.5 |
3.0 |
4.0 |
5.0 |
6.0 |
7.0 |
8.0 |
9.0 | ||||
|
額定負荷kg |
6300 |
4600 |
3000 |
2000 |
1190 |
930 |
750 |
600 | ||||
陜汽后雙橋20立方出口型壓縮垃圾車專為海外環衛市場量身打造,以硬核配置、可靠品質與全球化適配性,成為海外市政環衛、工業園區、大型社區垃圾集中清運的優選裝備,適配非洲、東南亞、南美等全球多地區工況,出口資質齊全,支持定制化改裝,助力全球環衛升級。
程力汽車公司主要銷售:冷藏車、吸污車、環衛垃圾車、吸糞車、道路清掃車、高空作業車 地址:湖北省·隨州市·南郊平原崗·程力汽車工業園 網站備案號:鄂ICP備18017768號-134
鄂公網安備 42130202001503號