微信掃碼
不僅是專業的導購
還是聊車的好伙伴
微信掃碼
不僅是專業的導購
還是聊車的好伙伴
一、油罐車
油罐車按期功能不同可以分為運油車和加油車兩種。運油車一般指運輸輕質燃油,重油,潤滑油,植物油等的罐式汽車,也可作貯存油料用。加油車除能運油外,還有如下功能:
①能為本車油罐加油;
②能將本車的燃油加給其它容器
③能不以本車油罐將一個容器的燃油注入另一容器內,起移動泵站作用
④能抽回加油軟管中的燃油
⑤能把燃油在本車內循環、攪拌,即所謂倒油。
(一)運油車
1、總體結構
圖3-9為輕質燃油半掛運油車列車。主要裝置有油罐,油管,呼吸閥,放油閥,液位指示器、

圖3-9 半掛運油車

1-油罐;2、4-加油口;3-扶梯;5-連通氣管;6-輸油軟管;7-接地鏈條;8-放油閥;9-排氣管及消聲器;10-滅火器
靜電消除裝置及滅火器等。圖3-10為該車油罐結構示意圖,罐體分隔成前后互不相通的兩個艙,每個艙各有一個人孔,每個人孔蓋上都有一個加油口,而呼吸閥只裝在前艙的人孔蓋上,用連通氣管在罐體外裝兩艙連通,共用一個呼吸閥。尾部的接地鏈條是用來裝運油車在行駛中產生的靜電導入地。輸油軟管處安裝接地導線,其未端裝有接地棒。放油時間將接地棒插入地下,以便將放油時產生的靜電導入大地。滅火器通常配置兩個,安裝于汽車駕駛室后的兩側。排氣管和消聲器不能接近油罐,要移至汽車前保險杠下,以免引起火災。
2、罐體結構與設計
圖3-11為非承式罐車的罐體典型結構,大型罐體多為承載式,且分隔成幾個互不相通的艙(見圖3-10)。罐內都設有若干塊橫向防波板,以加強罐體剛 度及減弱車輛行駛中油料對罐壁的沖擊,防波板可直接焊在罐體內,也可做成可折卸的,罐體上部的入孔直徑不小于500mm,便于工作人員出入檢查和維修。人也蓋上的加油孔 蓋和呼吸閥如圖3-12所示。加油孔蓋7采用橡膠密封,并用壓桿8壓緊。罐體底部的最低處應設沉淀槽和放出管(見圖3-11),以便收集水分和雜質,并定時從放出管排出。放油閥一般設在罐體尾部,便于放油,若是多艙罐體,每艙下部有一個底閥,再與放油閥相通,可以各艙單獨放油,也可同時放油。罐體內表面的防腐蝕處理方法,通常是經過噴砂處理后再進行涂(噴)鋅。

圖3-10 半掛運油車油罐結構示意圖
1-罐體;2-呼吸閥 ;3-加油口;4-連通氣管;5-接地鏈條;6-防波板;7-隔板;8-接地導線;9-放油軟管;10-放油閥;11-底閥

圖 3-11非承載式罐車罐體典型結構
1-罐體;2-人孔;3-呼吸閥;4-液位報警器;5-底閥及導靜電導線;6-液位器;7-沉淀槽;8-支承座;9-放出管;10-墊木;11-走臺;12-扶手
確定罐體形狀時,應有利于降低整車質心高度,減少自身質量,增大容積效率,減小空氣阻力,并與駕吮室外形相稱,整體造型美觀等。一般罐內壓力小于0.1MPa時,罐體橫截面取橢圓形;壓力大于0.1MPa時,多用圓形橫截面。常用罐體橫截面形狀如圖3-13所示。







3、其它裝置的結構及工作原理
(1)呼吸閥,呼吸閥能根據罐內氣壓的大小自動調節,并與大氣保持平衡,其作用是減少油料蒸發,防止罐體變形。調定壓力(表壓力)一般高壓為14.7-24.5Kpa,低壓為-4.9-9.8 Kpa,圖3-16為呼吸閥結構圖。當罐內氣壓超過高壓調定值時,蒸氣閥4連同空氣閥2在蒸氣壓力作用下一起上升,壓縮彈簧8,密封圈3離開閥體1,這樣油罐內外相通,蒸氣壓力下降。待恢復正常時,在彈簧力作用下,閥門關閉。當罐內壓力低于低壓調定值時,大氣壓力將空氣閥2向下推離開密封圈3,壓縮彈簧7,油罐內外相通,直至內外壓力平衡,閥門關閉。呼吸閥的閥體用鎳鉻不銹鋼制造,其它零件均用不銹耐鋼制造,以保證呼吸閥不產生銹蝕,工作可靠,一般大型油罐各艙均裝一個呼吸閥,中小型油罐可以只裝一個呼吸閥。

圖3-16 呼吸閥
1-閥體 2-空氣閥 3-密封圈 4-蒸氣閥 5-鋼絲網 6-固定螺釘 7 8-彈簧 9 10-彈簧座 11-鎖緊螺母 12-開門銷 13-防塵罩
(2)油、水裝滿報警器 油 水裝滿報警器結構示意圖如圖3-17。當油或水加入罐體內時,罐內氣體經排氣管,2、雙音哨 3排出時,雙音哨發出警聲,表示罐內液面還未到達額定位。可繼續加液,當液面到達額定液面高度4時,浮球1隨液面升起堵住排氣管2的進氣口,哨聲停止,表示罐體已裝滿,應停止裝液,報警器安裝在入孔蓋上。
(3)液位指示器,液位指示器能隨時測量和顯示液位的高度和液量,可防止加液超量,常用的液位指示器有以下三種形式。
①油量標尺(直觀式液位指示器)。油量標尺可直接量出罐內油量的多少,其刻度可按需要確定。
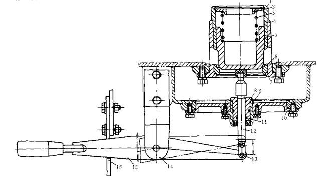
3將閥芯5壓緊在閥座6上,閥呈關閉狀態,當放油時,將操縱手柄15的左端向下壓,使頂桿12向上頂開閥芯5,壓縮彈簧3閥門打開,油液流出進入放油軟管,為使閥門開度保持不變,可將操縱手柄卡放定位板16的鎖孔內即可,放油完畢,撤去手柄15上的作用力,放油閥恢復到關閉狀態。

圖3-20 放油閥及操縱機構
1-閥套 2-壓圈 3-彈簧 4-閥座 5-閥芯 6-閥座阻 7-密封墊 8-襯套 9-套圈 10-o型密封圈 12-頂桿 13-連接板 14-操縱手柄支架 15-操縱手柄 16-定位板
普通油罐汽車的放油閥大多采用¢50mm球閥,布置在罐體尾部的下方,并與放油管相接,當打開放油閥,罐內油液即自行流出,關閉放油閥,油液即停止外流,球閥結構見圖3-26。
陜汽后雙橋20立方出口型壓縮垃圾車專為海外環衛市場量身打造,以硬核配置、可靠品質與全球化適配性,成為海外市政環衛、工業園區、大型社區垃圾集中清運的優選裝備,適配非洲、東南亞、南美等全球多地區工況,出口資質齊全,支持定制化改裝,助力全球環衛升級。
程力汽車公司主要銷售:冷藏車、吸污車、環衛垃圾車、吸糞車、道路清掃車、高空作業車 地址:湖北省·隨州市·南郊平原崗·程力汽車工業園 網站備案號:鄂ICP備18017768號-134
鄂公網安備 42130202001503號